RED MT. SFR

This new single-family residence near Maple Falls was a rewarding project, both in design and collaboration. The owner—an excellent client—is building the home himself with help from friends in the trades, which made constructability a key focus from the start.

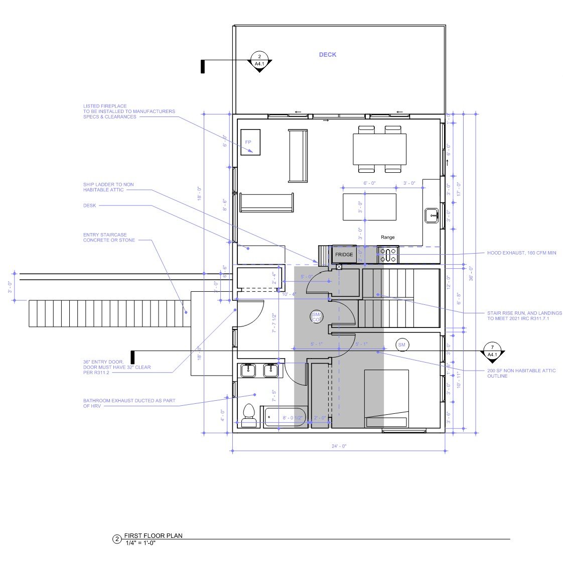
The primary goals were to orient the home for optimal southern exposure and views of Sumas Mountain, create an open, vaulted living space, and maximize usable square footage within a compact 864 sq ft footprint.

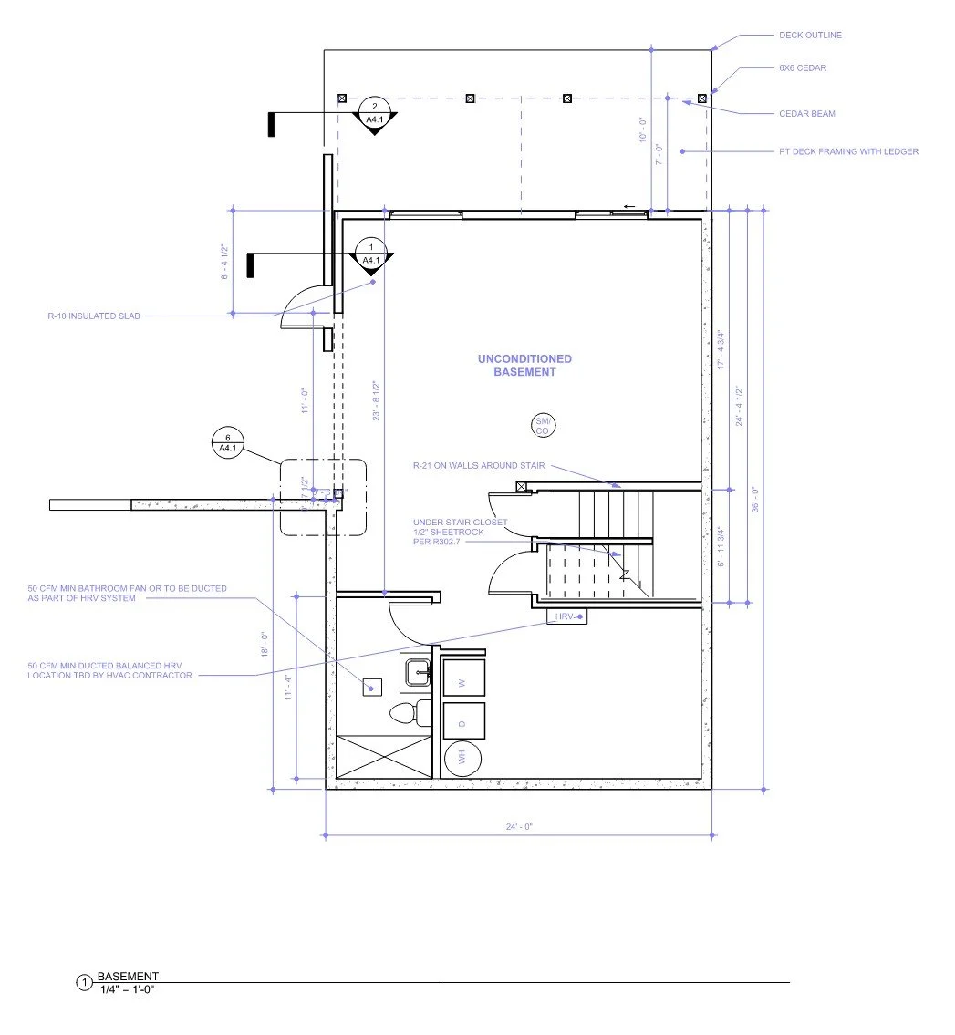
The basement is currently designed as a garage, with the flexibility to convert into bedrooms as future needs evolve. A bonus loft was sized to the maximum allowable area without requiring a staircase, preserving efficiency while leaving room for potential expansion later.

Simplicity in construction was another guiding principle. The design prioritizes standard dimensional lumber, uses dimensions divisible by four to reduce material waste, and carefully organizes the layout to make the most of the limited footprint.

The original design featured a cantilevered deck with a garage door running on tracks above. After coordination with the structural engineer, this was revised to a post-supported deck, simplifying the structure and reducing overall construction costs

Previous
Previous

HABITATION